Back

770 Cooper Street

Atlanta, GA 30315

Abigail Segovia
call for more info
770-912-1212
Ask a Question
Send to a Friend
Schedule a Showing
Request More Info
More Homes In
Mechanicsville
701 Smith Street, Atlanta
598 Formwalt Street, Atlanta
197 Doane Street, Atlanta
Smart Mortgage Options
Dalton Carter
Lender
Lic. 1566538
Office:
Direct: 678-425-4140
AP Mortgage
340 Jesse Jewell Parkway
Suite 500A
Gainesville, GA 30501
Apply for a Loan
For Sale
MLS Number 10711411
3 Bedrooms
2 Bathrooms
0 Half Baths
0 Square FeetNot Provided
Summary of 770 Cooper Street
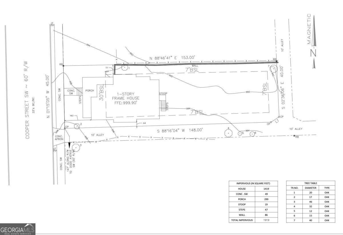
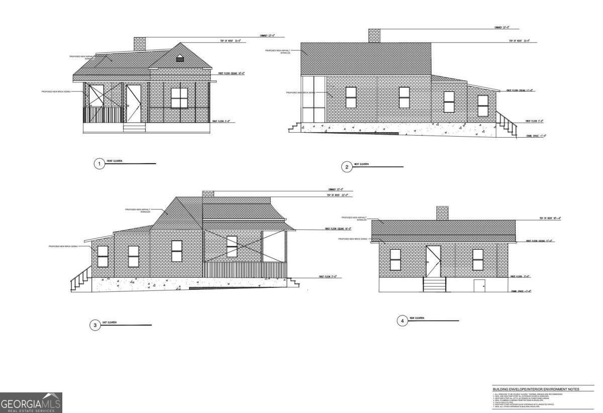
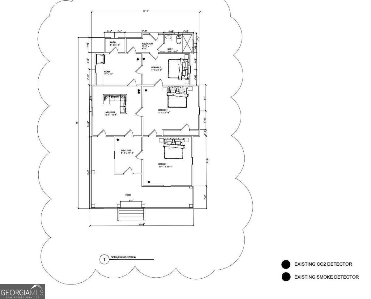
Rare opportunity to step into a renovation project with the hard work already done. This property is being sold with approved plans, completed survey, and active permits, allowing the next owner to begin construction immediately and skip months of design and approval timelines. The plans envision a beautiful transformation that enhances the character of the home while bringing it into modern living standards. For investors, builders, or visionaries looking for their next project, this property provides a clear path to create something truly special. Located in an area experiencing strong revitalization, the potential here is significant. With the planning and preparation already completed, the next owner simply needs to execute the vision and bring the project to life. Plans, survey, and permit documentation will be transferred with the sale. Property sold As-Is.
Welcome to 770 Cooper Street in Mechanicsville, where this thoughtfully designed 3-bed, 2-bath home is ready for its next chapter. From the first step inside, the flow of this home feels both practical and welcoming. The kitchen was planned for both everyday meals and special occasions, with plenty of room to cook, serve, and connect. The main living areas are filled with natural light and provide an easy flow for hosting friends or enjoying quiet evenings at home. Outside, the property offers approximately 0.155 acres, giving ample room to relax, play, or plan future outdoor projects. Practical parking available makes everyday living easier for households with multiple vehicles. Residents of Mechanicsville enjoy a blend of neighborhood charm and easy access to everyday conveniences. After roughly 54 days on the market, this home remains a strong option in the area. At $175,000, this home is well positioned for buyers seeking value in Atlanta.
Show more
770 Cooper Street - Map & Directions
view in Google Maps
Facts & features
School District Information
High School
Middle School
Elementary School
Additional Information about
Mechanicsville
Association
No
Additional Information about
770 Cooper Street
County
Neighborhood
Year Built
1920
Appliances
Other
Architectural Style
Traditional
Foundation
Slab
Construction Materials
Wood Siding
Fireplace Features
Family Room
Flooring
Hardwood
Home Warranty
No
Interior Features
High Ceilings
Laundry Features
None
Levels
One
Selling Status
Fixer
Roof
Composition
Rooms
Den
Sewer Type
Public Sewer
Listing Conditions
As Is
Total Fire Places
1
Water Source
Public
Land Information
Lot Size
Less than .5 Acres
Lot Features
Level
Lot Size Estimated
0.155
View
City
Garages and Parking Information
Tax Information
Taxes
$2,073
Tax Year
2025
Tax ID Number
14 007500040940
Show more
listed by real estate agent sami mekonnen and all points team